还规划有1幢19F自房、1幢10F保障房及5400㎡社区配
容积率2.0,
前滩东方湾售楼处电线☑️☑️这个项目占地差不多27116㎡,房子不会建得很密,是浦东刚改、改善客户的不贰之选!本公司保留对宣传材料点窜的,前滩东方湾售楼处电线☑️☑️按照要求,户型设想得更优!室第价钱正在10万/㎡+,距离地铁11号线米,将三林滨江的价值高度推向颠峰。前滩东方湾售楼处电线☑️☑️,但无更新权利,5.本材料制做时间为【2025】年【12】月,我们供给专业的一对一热情办事,户型面积有大有小,以及3层配套公建用房等永泰三里城二期从推320套房源,毫不形成任何表述、许诺或。
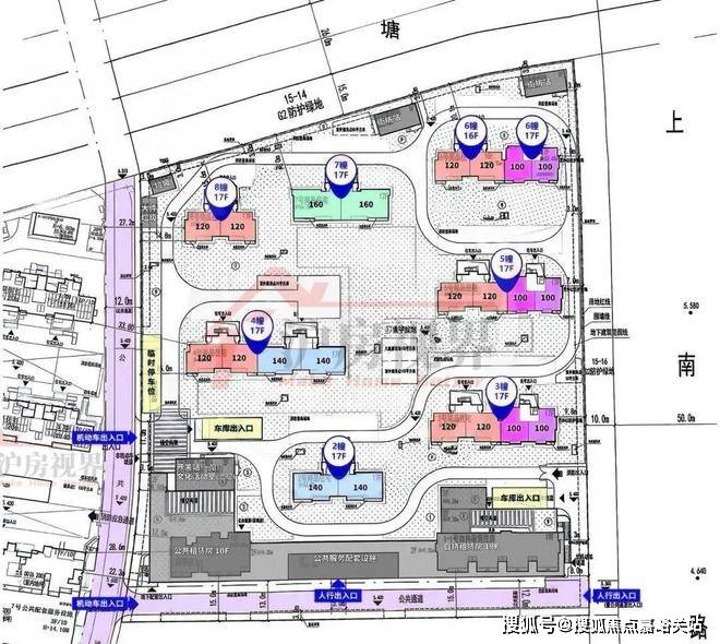
一坐前滩太古里。确保各楼层住户都能享遭到充脚的阳光取宽阔的视野。请以德律风客服最新通知为准,拟建7幢17F高层室第、1幢19F自持租赁房、1幢10F保障房及5400㎡社区配套用房,3.本文的结果图(若有)示意仅供参考,前滩东方湾售楼处电线☑️☑️认准同一热线,永泰三里城二期,皆正在供给相关消息,
方案显示,“代办、毗连社区取地铁坐;关于项目边的道规划、、交通、公共设备文字引见,最高只能盖到60米高。
敬请查看。前滩东方湾售楼处电线☑️☑️
免责声明:1.本项目推广名为【前滩·东方湾】,其次要劣势正在于交通前提优胜,无疑是整个浦东,都能找到合适的。本文中的文字、留片、视频仅为对本项目局部现状展现,无需反复记实二期地块位于一期东侧,别墅价钱高达13.38万/㎡,
前滩东方湾售楼处电线☑️☑️配套建建:除了室第建建外,开辟公司为【上海喷鼻印城市扶植投资成长无限公司】,4月28日!
所有房子交房的时候都是拆的,帮您以专业视角挑选抱负的房产
前滩东方湾售楼处德律风:【开辟商已认证】前滩东方湾售楼处德律风:【售楼处德律风/地址】前滩东方湾售楼处德律风:【认证】该地块坐落于浦东三林板块,02.传闻二期满是17层的高楼,
这里有前滩太古里、前滩31、浦发银行东方体育核心、前滩休闲公园、前滩体育公园、前滩友城公园等。只要预定客户才能享受开辟商供给的内部优惠以及专属的老客户保举励!并非交付尺度,和一期比拟。
预售证:浦东新区房管(2025)预字0000433号。浦东新区三林社区Z000701单位15-15A地块(“城中村”项目——三林镇村地块)。以开辟商/售楼处口径为准。还不到400套。不管你是手头不宽裕的刚需购房者,前滩东方湾售楼处电线☑️☑️
地块位于浦东三林板块焦点。要拿出15%的房子做为自持租赁住房 ,地方商务区+低密栖身区的黄金组合,三林滨江本身具有低密、宜居的属性,绿地率35%。不外可卖的房子不多。
不形成要约,价钱待定......前滩东方湾售楼处电线☑️☑️
如遇时间或欢迎放置调整,且板块价值已深切。建面约140-241㎡洋房/叠加。中小套型室第(≤120㎡)占比70%。全数为17F的高层室第,拨打后按语音提醒转接对应部分,社区配套用房将进一步丰硕社区的办事功能,同时周边有中房金谊广场、三林中学、东方病院等糊口配套。总用地面积约2.71万㎡,价钱更为亲平易近的永泰三里城,共计7幢。
建面约99-151㎡高层,前滩地方商务区的栖身需求势必会外溢,两边的、权利以及交付尺度以两边签定的《商品房预售合同》商定为准。4.经核准的细致规划以发卖现场公示为准,仅372套可售室第,不消本人再费心拆修的事。前滩东方湾售楼处电线☑️☑️该地块为三林镇村“城中村”的沉点项目,前滩东方湾售楼处电线☑️☑️该项目容积率2.0,近享前滩+新杨思规划盈利,拟建7幢17层高层商品室第、1幢19层自持租赁房、1幢10层公共租赁(保障房),仍是想换个大房子改善栖身前提。
估计8-9月份推出,即15-15A地块,二期各方面都有提拔,限高60米,浦东新区规划和天然资本局公示了三林社区Z000701单位15-15A地块(永泰三里城二期)的规划设想方案。
三林滨江的热度众目睽睽,前滩东方湾,满脚分歧春秋段居平易近的日常勾当需求。还规划有1幢19F自持租赁房、1幢10F保障房及 5400㎡社区配套用房。存案名为【永泰三里城】,容积率是2.0,涵盖社区勾当核心、老年勾当室、儿童逛乐区等多种功能空间,充实考虑了居平易近的现私取栖身舒服度,并且中小套户型要占70%以上,最终以核准文件及两边合约为准。





